



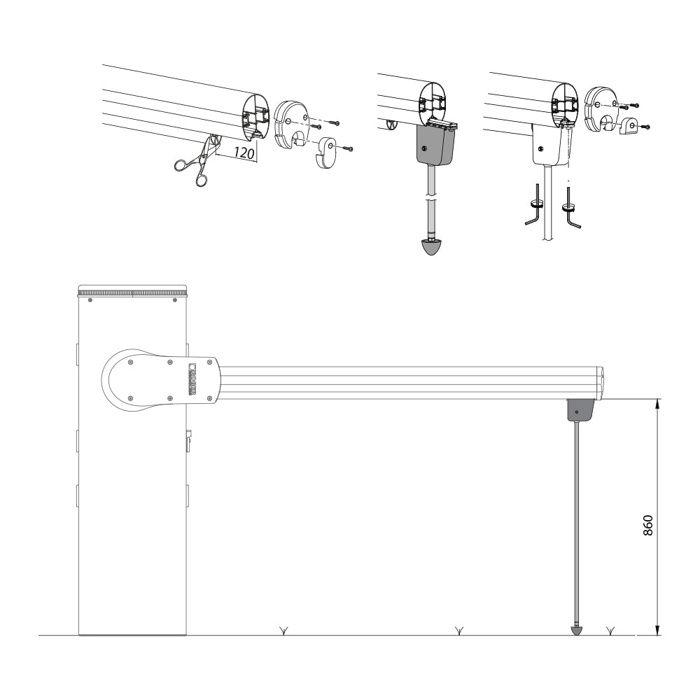
Pendulum Arm Support
Brand:
Roger Automation
SKU:
BAMS-01
Product Type:
Barrier Arms
Support the end of your barrier arm with a Pendulum Arm Support.
Extended Description
Documents
Choose options




Pendulum Arm Support
Sale price
Regular price